| 家賃・管理/共益費 | 35.000円 |
|---|---|
| 礼金 | 1ヶ月 |
| 住宅保険料/期間 | 0円 / 2年 |
| 仲介料(税込) | 0円 |
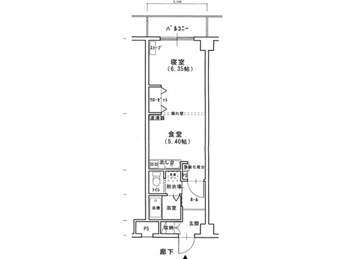
| 間取り | 1LDK |
| 専有面積 | 32.76 m2 |
| 種別・構造 | マンション・鉄筋コンクリート造 |
| 築年 | 1993/10 |
| 物件の住所 | 網走郡大空町女満別西一条6丁目2番18号 |
| 公共交通 | JR石北本線 / 女満別 徒歩10分 |
| 所在階/階数 | 3階 / 5階建て |
|---|---|
| 主要採光面 | 東向き |
| バルコニー面積 | 3.7 m2 |
| 現況 | 空室 |
| 駐車場 | 有り |
| 取引態様 | 貸主 |
| 引渡 | 即入居可 |
| 設備 | LPGガス、給湯器、シャワー、BSアンテナ、エレベータ、バルコニー、ストーヴ、洗面台、インターネット回線可、ガスコンロ、照明、寒冷地仕様冷暖房クーラー、駐車場完備 |
| 近隣状況 | コンビニあり(徒歩8分) |
| 情報更新日 | 2026/01/19 |
| 家賃・管理/共益費 | 40.000円 |
|---|---|
| 礼金 | 1ヶ月 |
| 住宅保険料/期間 | 0円 / 2年 |
| 仲介料(税込) | 0円 |
| 間取り | 1LDK |
| 専有面積 | 32.76 m2 |
| 種別・構造 | マンション・鉄筋コンクリート造 |
| 築年 | 1993/10 |
| 物件の住所 | 網走郡大空町女満別西一条6丁目2番18号 |
| 公共交通 | JR石北本線 / 女満別 徒歩10分 |
| 所在階/階数 | 3階 / 5階建て |
|---|---|
| 主要採光面 | 西向き |
| バルコニー面積 | 3.7 m2 |
| 現況 | 空室 |
| 駐車場 | 有り |
| 取引態様 | 貸主 |
| 引渡 | 即入居可 |
| 設備 | LPGガス、給湯器、シャワー、BSアンテナ、エレベータ、バルコニー、ストーヴ、洗面台、インターネット回線可、、IHコンロ、照明、インターホン 寒冷地仕様冷暖房ク-ラ-、駐車場完備 |
| 近隣状況 | コンビニあり(徒歩8分) |
| 情報更新日 | 2026/03/03 |
| 家賃・管理/共益費 | 45.000円 |
|---|---|
| 礼金 | 1ヶ月 |
| 住宅保険料/期間 | 0円 / 2年 |
| 仲介料(税込) | 0円 |
| 間取り | 1LDK |
| 専有面積 | 32.76 m2 |
| 種別・構造 | マンション・鉄筋コンクリート造 |
| 築年 | 1993/10 |
| 物件の住所 | 網走郡大空町女満別西一条6丁目2番18号 |
| 公共交通 | JR石北本線 / 女満別 徒歩10分 |
| 所在階/階数 | 3階 / 5階建て |
|---|---|
| 主要採光面 | 東向き |
| バルコニー面積 | 3.7 m2 |
| 現況 | |
| 駐車場 | 有り |
| 取引態様 | 貸主 |
| 引渡 | 只今清掃中 |
| 設備 | LPGガス、給湯器、シャワー、BSアンテナ、エレベータ、バルコニー、ストーブ、洗面台、インターネット回線可、IHコンロ、、照明 寒冷地仕様冷暖房ク-ラ-、駐車場完備 |
| 近隣状況 | コンビニあり(徒歩8分) |
| 情報更新日 | 2026/02/26 |
| 家賃・管理/共益費 | 35、000円 |
|---|---|
| 礼金 | 1ヶ月 |
| 住宅保険料/期間 | 0円 / 2年 |
| 仲介料(税込) | 0円 |
| 間取り | 1LDK |
| 専有面積 | 32.76 m2 |
| 種別・構造 | マンション・鉄筋コンクリート造 |
| 築年 | 1993/10 |
| 物件の住所 | 網走郡大空町女満別西一条6丁目2番18号 |
| 公共交通 | JR石北本線 / 女満別 徒歩10分 |
| 所在階/階数 | 2階 / 5階建て |
|---|---|
| 主要採光面 | 西向き |
| バルコニー面積 | 3.7 m2 |
| 現況 | 入居中 |
| 駐車場 | 有り |
| 取引態様 | 貸主 |
| 引渡 | 即入居可 |
| 設備 | LPGガス、給湯器、シャワー、BSアンテナ、エレベータ、バルコニー、ストーヴ、インターネット回線可、ガスコンロ、LED照明、 寒冷地仕様冷暖房クーラー、駐車場完備 |
| 近隣状況 | コンビニあり(徒歩8分) |
| 情報更新日 | 2025/9/04 |
| 家賃・管理/共益費 | 45,000円 |
|---|---|
| 礼金 | 1ヶ月 |
| 住宅保険料/期間 | 0円 / 2年 |
| 仲介料(税込) | 0円 |
| 間取り | 1LDK |
| 専有面積 | 32.76 m2 |
| 種別・構造 | マンション・鉄筋コンクリート造 |
| 築年 | 1993/10 |
| 物件の住所 | 網走郡大空町女満別西一条6丁目2番18号 |
| 公共交通 | JR石北本線 / 女満別 徒歩10分 |
| 所在階/階数 | 2階 / 5階建て |
|---|---|
| 主要採光面 | 東向き |
| バルコニー面積 | 3.7 m2 |
| 現況 | 入居中 |
| 駐車場 | 有り |
| 取引態様 | 貸主 |
| 引渡 | 即入居可 |
| 設備 | LPGガス、給湯器、シャワー、BSアンテナ、エレベータ、バルコニー、ストーヴ、洗面台、インターネット回線可、IHコンロ、LED照明 寒冷地仕様冷暖房ク-ラ-、駐車場完備 |
| 近隣状況 | コンビニあり(徒歩8分) |
| 情報更新日 | 2026/01/16 |
| 家賃・管理/共益費 | 40,000円 |
|---|---|
| 礼金 | 1ヶ月 |
| 住宅保険料/期間 | 0円 / 2年 |
| 仲介料(税込) | 0円 |
| 間取り | 1LDK |
| 専有面積 | 32.76 m2 |
| 種別・構造 | マンション・鉄筋コンクリート造 |
| 築年 | 1993/10 |
| 物件の住所 | 網走郡大空町女満別西一条6丁目2番18号 |
| 公共交通 | JR石北本線 / 女満別 徒歩10分 |
| 所在階/階数 | 2階 / 5階建て |
|---|---|
| 主要採光面 | 西向き |
| バルコニー面積 | 3.7 m2 |
| 現況 | 空室 |
| 駐車場 | 有り |
| 取引態様 | 貸主 |
| 引渡 | 即入居可 |
| 設備 | LPGガス、給湯器、シャワー、BSアンテナ、エレベータ、バルコニー、ストーヴ、洗面台、インターネット回線可、ガス台、ガスコンロ、照明 寒冷地仕様冷暖房ク-ラ-、駐車場完備 |
| 近隣状況 | コンビニあり(徒歩8分) |
| 情報更新日 | 2026/3/03 |
| 家賃・管理/共益費 | 65,000円 |
|---|---|
| 礼金 | 1ヶ月 |
| 住宅保険料/期間 | 0円 / 2年 |
| 仲介料(税込) | 0円 |
| 間取り | 3LDK |
| 専有面積 | 65.52 m2 |
| 種別・構造 | マンション・鉄筋コンクリート造 |
| 築年 | 1993/10 |
| 物件の住所 | 網走郡大空町女満別西一条6丁目2番18号 |
| 公共交通 | JR石北本線 / 女満別 徒歩10分 |
| 所在階/階数 | 4階 / 5階建て |
|---|---|
| 主要採光面 | 東向き |
| バルコニー面積 | 7.15 m2 |
| 現況 | 4月18日以降入居可 |
| 駐車場 | 有 |
| 取引態様 | 貸主 |
| 引渡 | |
| 設備 | LPGガス、給湯器、、シャワー、BSアンテナ、 対面式システムキッチン、Wレット、専用トイレ 、 エレベータ、バルコニー、ストーヴ、洗面台、 インターネット回線可、Ⅼed照明、、 駐車場完備、 寒冷地仕様冷暖房ク-ラ- |
| 近隣状況 | コンビニあり(徒歩8分位)車で3分位 |
| 情報更新日 | 2026年3月18日 |
| 家賃・管理/共益費 | 30.000円 |
|---|---|
| 礼金 | ・1ヶ月 敷金0円 |
| 住宅保険料/期間 | 0円 / 2年 |
| 近隣状況 | セブンイレブンまで徒歩で2分位です。 |
| 間取り | 1DK |
| 専有面積 | 29.16 m2 |
| 種別・構造 | アパート・木造 |
| 築年 | 1991/10 |
| 物件の住所 | 網走郡大空町女満別本通4丁目2番12号 |
| 公共交通 | JR石北本線 / 女満別 徒歩8分 空港車で10分 |
| 所在階/階数 | 2階 / 2階建て |
|---|---|
| 主要採光面 | 南向き |
| バルコニー面積 | 0 m2 |
| 現況 | 空室 |
| 駐車場 | 家賃込み |
| 取引態様 | 貸主 |
| 引渡 | 即入居可 |
| 設備 | LPGガス、給湯器、シャワー、カーテンW、 インターネット回線可、照明、駐車場完備, 冷房クーラー、ベッド、ストーブ、風呂 テレビ、ベッド、布団、棚、掃除機、洗濯機、湯沸かしポッド、 |
| 近隣状況 | コンビニあり(徒歩2分) |
| 情報更新日 | 2026/03/02 |
| 家賃・管理/共益費 | 円 |
|---|---|
| 礼金 | ・1ヶ月 敷金0円 |
| 住宅保険料/期間 | 0円 / 2年 |
| 近隣状況 | セブンイレブンまで徒歩で2分位です。 |
| 間取り | 1DK |
| 専有面積 | 29.16 m2 |
| 種別・構造 | アパート・木造 |
| 築年 | 1991/10 |
| 物件の住所 | 網走郡大空町女満別本通4丁目2番12号 |
| 公共交通 | JR石北本線 / 女満別 徒歩8分 空港車で10分 |
| 所在階/階数 | 2階 / 2階建て |
|---|---|
| 主要採光面 | 南向き |
| バルコニー面積 | 0 m2 |
| 現況 | 空室 |
| 駐車場 | 家賃込み |
| 取引態様 | 貸主 |
| 引渡 | 即入居可 |
| 設備 | LPGガス、給湯器、シャワー、カーテンW、 インターネット回線可、照明、駐車場完備, 冷房クーラー、ベッド、ストーブ、風呂 テレビ、ベッド、布団、棚、掃除機、洗濯機、湯沸かしポッド、ガスコンロ |
| 近隣状況 | コンビニあり(徒歩2分) |
| 情報更新日 | 2027/03/02 |
| 家賃・管理/共益費 | 30、000円 |
|---|---|
| 礼金 | ・1ヶ月 敷金0円 |
| 住宅保険料/期間 | 0円 / 2年 |
| 近隣状況 | セブンイレブンまで徒歩で2分位です。 |
| 間取り | 1DK |
| 専有面積 | 29.16 m2 |
| 種別・構造 | アパート・木造 |
| 築年 | 1991/10 |
| 物件の住所 | 網走郡大空町女満別本通4丁目2番12号 |
| 公共交通 | JR石北本線 / 女満別 徒歩8分 空港車で10分 |
| 所在階/階数 | 1階 / 2階建て |
|---|---|
| 主要採光面 | 南向き |
| バルコニー面積 | 0 m2 |
| 現況 | 空室 |
| 駐車場 | 家賃込み |
| 取引態様 | 貸主 |
| 引渡 | 即入居可 |
| 設備 | LPGガス、給湯器、シャワー、カーテンW、 インターネット回線可、照明、駐車場完備, 冷房 ク-ラ-、ベッド、 スト-ブ |
| 近隣状況 | コンビニあり(徒歩2分) |
| 情報更新日 | 2026/03/02 |
| 家賃・管理/共益費 | |
|---|---|
| 礼金 | ・1ヶ月 敷金0円 |
| 住宅保険料/期間 | 0円 / 2年 |
| 仲介料(税込) | 0円 |
| 間取り | 1DK |
| 専有面積 | 29.16 m2 |
| 種別・構造 | アパート・木造造 |
| 築年 | 1989/10 |
| 物件の住所 | 網走郡大空町女満別本通4丁目2番12号 |
| 公共交通 | JR石北本線 / 女満別 徒歩8分 |
| 間取り詳細 | ワンルーム |
| 所在階/階数 | 1階 / 2階建て |
|---|---|
| 主要採光面 | 南向き |
| バルコニー面積 | 0 m2 |
| 現況 | 空き |
| 駐車場 | 家賃込み |
| 取引態様 | 貸主 |
| 引渡 | 即入居可 |
| 設備 | LPGガス、シャワー、給湯器、物置、ストーヴ、カーテンW、インターネット回線可、照明、駐車場完備, 冷 房 ク - ラ -、電子レンジ、洗濯機、冷蔵庫、毛布、 組布団、枕,肌布団、 |
| 近隣状況 | コンビニあり(徒歩5分) |
| 情報更新日 | 2025/09/18 |